Neubauwohnung mit Südterrasse im Erstbezug! Obj. 9066
Obj.-Nr.: 9066
Beschreibung
Diese moderne Neubauwohnung bietet höchsten Wohnkomfort und überzeugt mit einer durchdachten Raumaufteilung sowie einer hochwertigen Ausstattung. Als Erstbezug befindet sie sich in einem exklusiven Mehrparteienhaus mit nur fünf Wohneinheiten, was für eine ruhige und angenehme Wohnatmosphäre sorgt.
Die Wohnung verfügt über zwei geräumige Schlafzimmer, die sich ideal als Rückzugsorte oder auch als Homeoffice eignen. Der offene Wohn- und Essbereich schafft eine einladende Atmosphäre und bietet ausreichend Platz für gemütliche Stunden mit Familie oder Freunden. Die Wohnung verfügt über eine voll ausgestattete Einbauküche, die Sie zusätzlich für 55€/mtl. anmieten und somit für eine direkte Nutzung bereitsteht.
Ein praktischer Hauswirtschaftsraum sowie ein separater Abstellraum sorgen für zusätzlichen Stauraum und erleichtern den Alltag.
Das moderne Duschbad ist stilvoll gestaltet und bietet hohen Komfort. Ein besonderes Highlight ist die großzügige Südterrasse, die sich perfekt zum Entspannen oder für gesellige Abende im Freien eignet.
Ein kostenloser Parkplatz steht Ihnen vor dem Haus zur Verfügung.
Diese Wohnung vereint modernes Wohnen mit Funktionalität und Wohlfühlambiente – ideal für alle, die ein neues Zuhause in einem hochwertigen Neubau suchen.
Bitte beachten Sie, dass die gezeigten Wohnungsfotos aus einem baugleichen, bereits fertiggestellten Haus stammen. Das angebotene Objekt befindet sich derzeit noch in der Fertigstellung; Abweichungen von den dargestellten Fotos sind möglich.
Die Wohnung verfügt über zwei geräumige Schlafzimmer, die sich ideal als Rückzugsorte oder auch als Homeoffice eignen. Der offene Wohn- und Essbereich schafft eine einladende Atmosphäre und bietet ausreichend Platz für gemütliche Stunden mit Familie oder Freunden. Die Wohnung verfügt über eine voll ausgestattete Einbauküche, die Sie zusätzlich für 55€/mtl. anmieten und somit für eine direkte Nutzung bereitsteht.
Ein praktischer Hauswirtschaftsraum sowie ein separater Abstellraum sorgen für zusätzlichen Stauraum und erleichtern den Alltag.
Das moderne Duschbad ist stilvoll gestaltet und bietet hohen Komfort. Ein besonderes Highlight ist die großzügige Südterrasse, die sich perfekt zum Entspannen oder für gesellige Abende im Freien eignet.
Ein kostenloser Parkplatz steht Ihnen vor dem Haus zur Verfügung.
Diese Wohnung vereint modernes Wohnen mit Funktionalität und Wohlfühlambiente – ideal für alle, die ein neues Zuhause in einem hochwertigen Neubau suchen.
Bitte beachten Sie, dass die gezeigten Wohnungsfotos aus einem baugleichen, bereits fertiggestellten Haus stammen. Das angebotene Objekt befindet sich derzeit noch in der Fertigstellung; Abweichungen von den dargestellten Fotos sind möglich.
Ausstattung
Fordern Sie unser vollständiges Exposé in unserem Kontaktformular an.
Mietpreis
1.099,00 €
Kaltmiete pro Monat
Objektdaten
Wohnfläche
81,00 m²
Zimmeranzahl
3.00
Anzahl Bäder
1.00
Anzahl Schlafzimmer
2.00
Baujahr
2025
Bezugstermin
01.03.2026
Postleitzahl
26180
Ort
Rastede
Balkon oder Terrasse
Vorhanden
Kaution
2.198,00 €
Nebenkosten
200,00 €
Warmmiete
1.299,00 €
Energiedaten
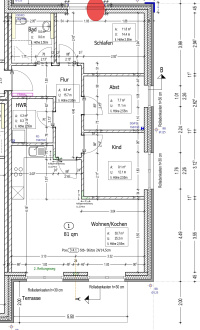
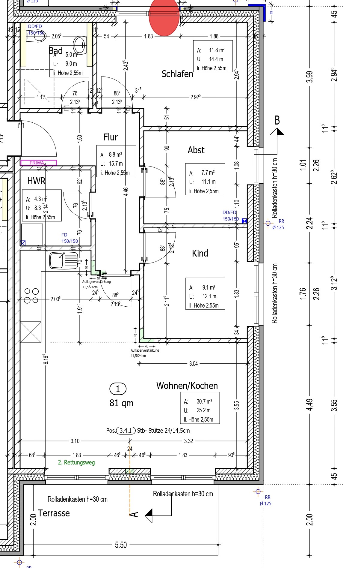
Grundrisse
Fordern Sie unser vollständiges Exposé in unserem Kontaktformular an. Dort befinden sich die vorhandenen Grundrisse.
Lage
Die Immobilie befindet sich in der Oldenburger Straße, zentral gelegen im Herzen von Rastede, einer charmanten Gemeinde im Landkreis Ammerland, Niedersachsen. Die Oldenburger Straße ist eine der Hauptverkehrsadern des Ortes und bietet eine hervorragende Anbindung an die umliegenden Städte, insbesondere die nahegelegene Großstadt Oldenburg, die etwa 12 Kilometer südlich liegt.
In unmittelbarer Umgebung der Immobilie finden Sie eine Vielzahl von Einkaufsmöglichkeiten, gastronomischen Betrieben und Dienstleistern, die den täglichen Bedarf abdecken. Die zentrale Lage ermöglicht es, viele dieser Einrichtungen bequem zu Fuß zu erreichen. Für Familien mit Kindern sind Schulen und Kindergärten in der Nähe vorhanden, was den Standort besonders attraktiv macht.
Die Verkehrsanbindung ist ausgezeichnet: Die Autobahn A29 ist schnell erreichbar und verbindet Rastede mit den umliegenden Regionen. Öffentliche Verkehrsmittel, wie Buslinien, sind ebenfalls gut erreichbar und bieten regelmäßige Verbindungen in die Nachbarstädte.
Freizeit- und Erholungsmöglichkeiten sind reichlich vorhanden. Die Umgebung von Rastede zeichnet sich durch eine reizvolle Landschaft aus, die zu Spaziergängen und Radtouren einlädt. Zudem gibt es in der Nähe Sporteinrichtungen und kulturelle Angebote, die für Abwechslung sorgen.
Insgesamt bietet die Lage in der Oldenburger Straße eine perfekte Kombination aus zentraler Lage, guter Infrastruktur und hoher Lebensqualität, ideal für alle, die das Leben in einer lebendigen Gemeinde mit hervorragender Anbindung schätzen.
In unmittelbarer Umgebung der Immobilie finden Sie eine Vielzahl von Einkaufsmöglichkeiten, gastronomischen Betrieben und Dienstleistern, die den täglichen Bedarf abdecken. Die zentrale Lage ermöglicht es, viele dieser Einrichtungen bequem zu Fuß zu erreichen. Für Familien mit Kindern sind Schulen und Kindergärten in der Nähe vorhanden, was den Standort besonders attraktiv macht.
Die Verkehrsanbindung ist ausgezeichnet: Die Autobahn A29 ist schnell erreichbar und verbindet Rastede mit den umliegenden Regionen. Öffentliche Verkehrsmittel, wie Buslinien, sind ebenfalls gut erreichbar und bieten regelmäßige Verbindungen in die Nachbarstädte.
Freizeit- und Erholungsmöglichkeiten sind reichlich vorhanden. Die Umgebung von Rastede zeichnet sich durch eine reizvolle Landschaft aus, die zu Spaziergängen und Radtouren einlädt. Zudem gibt es in der Nähe Sporteinrichtungen und kulturelle Angebote, die für Abwechslung sorgen.
Insgesamt bietet die Lage in der Oldenburger Straße eine perfekte Kombination aus zentraler Lage, guter Infrastruktur und hoher Lebensqualität, ideal für alle, die das Leben in einer lebendigen Gemeinde mit hervorragender Anbindung schätzen.
Kontaktformular
Wünschen Sie eine Immobilie zu kaufen/mieten oder möchten Sie verkaufen/vermieten, dann nehmen Sie bitte mit diesem Formular Kontakt mit uns auf. Bitte tragen Sie hierzu Ihren Namen, Adresse, und Telefonummer in das nachfolgende Feld ein und wir werden uns kurzfristig zwecks Terminabsprache mit Ihnen in Verbindung setzen.