3-Zimmer Wohnung mit Dachterrasse im Erstbezug! Obj. 9070
Obj.-Nr.: 9070
Beschreibung
Diese moderne Dachgeschosswohnung in einem exklusiven Neubau bietet höchsten Wohnkomfort und steht als Erstbezug in einem kleinen Mehrparteienhaus mit nur fünf Wohneinheiten zur Verfügung. Die durchdachte Raumaufteilung und hochwertige Ausstattung schaffen eine stilvolle Wohnatmosphäre.
Die Wohnung verfügt über zwei helle Schlafzimmer, die sich ideal als Rückzugsorte, Kinderzimmer oder Homeoffice nutzen lassen. Der offene Wohn- und Essbereich sorgt für eine einladende Atmosphäre und bietet ausreichend Platz für gemeinsame Stunden mit Familie oder Freunden. Die Wohnung verfügt über eine voll ausgestattete Einbauküche, die Sie zusätzlich für 55€/mtl. anmieten und somit für eine direkte Nutzung bereitsteht.
Das moderne Badezimmer ist mit einer großzügigen Dusche ausgestattet und überzeugt mit stilvollem Design. Ein separater Hauswirtschaftsraum sorgt für zusätzlichen Stauraum und erleichtert den Alltag.
Ein besonderes Highlight dieser Wohnung ist die großzügige Dachterrasse, die viel Platz für entspannte Stunden im Freien bietet und einen wunderbaren Ausblick ermöglicht.
Ein kostenloser Parkplatz steht Ihnen vor dem Haus zur Verfügung.
Diese Dachgeschosswohnung vereint modernes Wohnen mit Komfort und Funktionalität – perfekt für alle, die ein hochwertiges Zuhause in einem stilvollen Neubau suchen.
Bitte beachten Sie, dass die gezeigten Wohnungsfotos aus einem baugleichen, bereits fertiggestellten Haus stammen. Das angebotene Objekt befindet sich derzeit noch in der Fertigstellung; Abweichungen von den dargestellten Fotos sind möglich.
Die Wohnung verfügt über zwei helle Schlafzimmer, die sich ideal als Rückzugsorte, Kinderzimmer oder Homeoffice nutzen lassen. Der offene Wohn- und Essbereich sorgt für eine einladende Atmosphäre und bietet ausreichend Platz für gemeinsame Stunden mit Familie oder Freunden. Die Wohnung verfügt über eine voll ausgestattete Einbauküche, die Sie zusätzlich für 55€/mtl. anmieten und somit für eine direkte Nutzung bereitsteht.
Das moderne Badezimmer ist mit einer großzügigen Dusche ausgestattet und überzeugt mit stilvollem Design. Ein separater Hauswirtschaftsraum sorgt für zusätzlichen Stauraum und erleichtert den Alltag.
Ein besonderes Highlight dieser Wohnung ist die großzügige Dachterrasse, die viel Platz für entspannte Stunden im Freien bietet und einen wunderbaren Ausblick ermöglicht.
Ein kostenloser Parkplatz steht Ihnen vor dem Haus zur Verfügung.
Diese Dachgeschosswohnung vereint modernes Wohnen mit Komfort und Funktionalität – perfekt für alle, die ein hochwertiges Zuhause in einem stilvollen Neubau suchen.
Bitte beachten Sie, dass die gezeigten Wohnungsfotos aus einem baugleichen, bereits fertiggestellten Haus stammen. Das angebotene Objekt befindet sich derzeit noch in der Fertigstellung; Abweichungen von den dargestellten Fotos sind möglich.
Ausstattung
Fordern Sie unser vollständiges Exposé in unserem Kontaktformular an.
Mietpreis
1.295,00 €
Kaltmiete pro Monat
Objektdaten
Wohnfläche
96,00 m²
Zimmeranzahl
3.00
Anzahl Bäder
1.00
Anzahl Schlafzimmer
2.00
Baujahr
2025
Bezugstermin
01.02.2026
Postleitzahl
26180
Ort
Rastede
Balkon oder Terrasse
Vorhanden
Kaution
2.590,00 €
Nebenkosten
240,00 €
Energiedaten
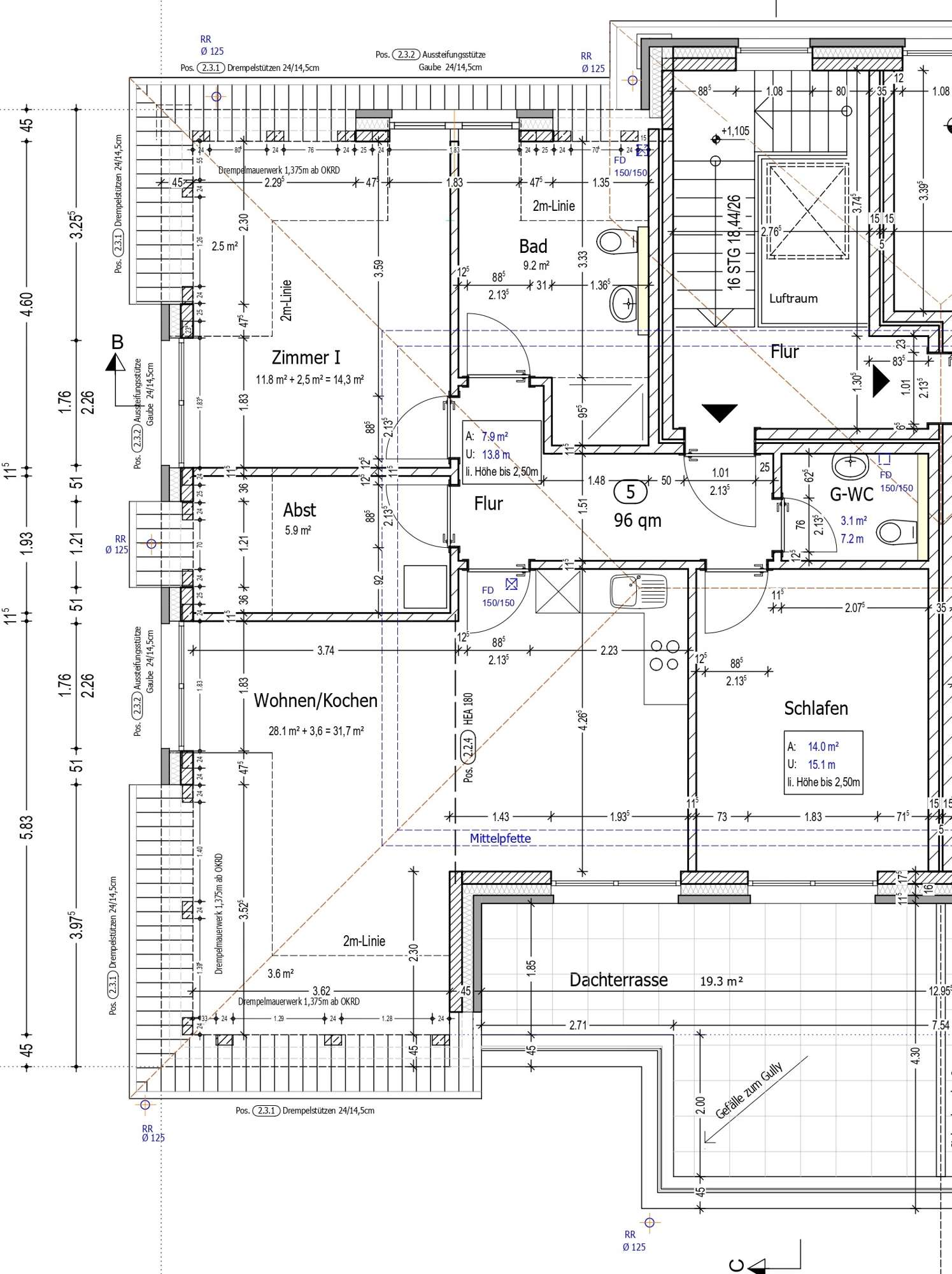
Grundrisse
Fordern Sie unser vollständiges Exposé in unserem Kontaktformular an. Dort befinden sich die vorhandenen Grundrisse.
Lage
Die Immobilie befindet sich in der Oldenburger Straße, zentral gelegen im Herzen von Rastede, einer charmanten Gemeinde im Landkreis Ammerland, Niedersachsen. Die Oldenburger Straße ist eine der Hauptverkehrsadern des Ortes und bietet eine hervorragende Anbindung an die umliegenden Städte, insbesondere die nahegelegene Großstadt Oldenburg, die etwa 12 Kilometer südlich liegt.
In unmittelbarer Umgebung der Immobilie finden Sie eine Vielzahl von Einkaufsmöglichkeiten, gastronomischen Betrieben und Dienstleistern, die den täglichen Bedarf abdecken. Die zentrale Lage ermöglicht es, viele dieser Einrichtungen bequem zu Fuß zu erreichen. Für Familien mit Kindern sind Schulen und Kindergärten in der Nähe vorhanden, was den Standort besonders attraktiv macht.
Die Verkehrsanbindung ist ausgezeichnet: Die Autobahn A29 ist schnell erreichbar und verbindet Rastede mit den umliegenden Regionen. Öffentliche Verkehrsmittel, wie Buslinien, sind ebenfalls gut erreichbar und bieten regelmäßige Verbindungen in die Nachbarstädte.
Freizeit- und Erholungsmöglichkeiten sind reichlich vorhanden. Die Umgebung von Rastede zeichnet sich durch eine reizvolle Landschaft aus, die zu Spaziergängen und Radtouren einlädt. Zudem gibt es in der Nähe Sporteinrichtungen und kulturelle Angebote, die für Abwechslung sorgen.
Insgesamt bietet die Lage in der Oldenburger Straße eine perfekte Kombination aus zentraler Lage, guter Infrastruktur und hoher Lebensqualität, ideal für alle, die das Leben in einer lebendigen Gemeinde mit hervorragender Anbindung schätzen.
In unmittelbarer Umgebung der Immobilie finden Sie eine Vielzahl von Einkaufsmöglichkeiten, gastronomischen Betrieben und Dienstleistern, die den täglichen Bedarf abdecken. Die zentrale Lage ermöglicht es, viele dieser Einrichtungen bequem zu Fuß zu erreichen. Für Familien mit Kindern sind Schulen und Kindergärten in der Nähe vorhanden, was den Standort besonders attraktiv macht.
Die Verkehrsanbindung ist ausgezeichnet: Die Autobahn A29 ist schnell erreichbar und verbindet Rastede mit den umliegenden Regionen. Öffentliche Verkehrsmittel, wie Buslinien, sind ebenfalls gut erreichbar und bieten regelmäßige Verbindungen in die Nachbarstädte.
Freizeit- und Erholungsmöglichkeiten sind reichlich vorhanden. Die Umgebung von Rastede zeichnet sich durch eine reizvolle Landschaft aus, die zu Spaziergängen und Radtouren einlädt. Zudem gibt es in der Nähe Sporteinrichtungen und kulturelle Angebote, die für Abwechslung sorgen.
Insgesamt bietet die Lage in der Oldenburger Straße eine perfekte Kombination aus zentraler Lage, guter Infrastruktur und hoher Lebensqualität, ideal für alle, die das Leben in einer lebendigen Gemeinde mit hervorragender Anbindung schätzen.
Kontaktformular
Wünschen Sie eine Immobilie zu kaufen/mieten oder möchten Sie verkaufen/vermieten, dann nehmen Sie bitte mit diesem Formular Kontakt mit uns auf. Bitte tragen Sie hierzu Ihren Namen, Adresse, und Telefonummer in das nachfolgende Feld ein und wir werden uns kurzfristig zwecks Terminabsprache mit Ihnen in Verbindung setzen.